團隊成員
高小倩 / 建築系副教授 劉塗中 / 建築系助理教授
駱泳達 / 建築系碩士班一年級 曹蓉馨 / 建築系學士班四年級
張美彩 / 建築系學士班二年級 徐堃翟 / 建築系學士班二年級
謝維恩 / 建築系學士班二年級
合作對象
張妙祝老師
配合課程
基本設計(二)、構築文化的現代性
成果摘要
本次計畫以「文化資產未來化」為核心,從生活型態、構築技術、循環經濟、數位技術與氣候變遷五大面向進行研究與設計。計畫首先透過三組住宅提案探討當代與地方生活方式的融合,強調居住日常作為文化延續的核心價值;其次透過對太平老街建築構築文化的觀察與實作,去理解「表現性」如何藉由形式、材料與構法展現出深厚的歷史脈絡與文化記憶,並進一步探討建築行為在「再現」與「存在」之間的建構意義;同時從循環經濟的角度出發,建構以在地資源再利用與產業鏈共生為主軸的永續再生模式;再者運用數位技術進行文化記錄、模擬與再設計,促成地方知識的保存與共享;最後面對氣候變遷挑戰,探討騎樓在極端降雨下的淹水問題,並提出改善策略以強化老街空間的防災韌性。
生活型態與未來文化資產
在「生活型態與未來文化資產」部分,我們透過三組住宅設計提案,探討不同世代、族群與生活模式在太平老街的生活型態。

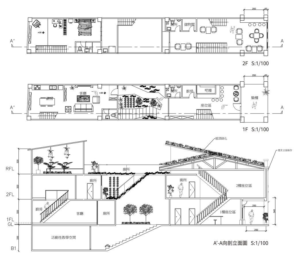
(一)篙青厝-生活型態與空間敘事
建築體為一條長形,前段規劃為結合歷史建物的商業空間,中段設置中庭,引入自然光與綠意,作為商業與住宅的過渡節點,後段為融合可食地景的永續主軸住宅區。整體設計保留歷史紋理,搭配自然,營造一個歷史與自然共融、商業與居住共生的生活場域。
業主設定
出生於2003年 (42歲) 雲林縣斗六市有一名妻子,無兒女
返鄉契機
家族中藥行面臨倒閉危機
深知街區的歷史與文化價值,看到其逐漸沒落感到不捨厭倦都市枯燥的生活選擇返鄉,繼承家族中藥行


(二)間光,棲息-從家的感知到場域的空間轉譯
本設計以「光、風與棲息」為主題,發展出一種以慢生活為核心的空間形式,建築由多個小尺度空間組構而成,如茶室、閱讀角、公共廊道與植物內院,讓生活片段在不同場域中展開。
透過光影的穿透、動線的轉折與風的流動,使空間成為一座能承載記憶、適合慢居與交流的未來之家。
業主設定
母親是一位退休茶師,喜歡泡茶與植物;父親與女兒從事文創產業,關注在地文化、手作與公共參與,渴望在日常中彼此陪伴與分享。


(三)瓦下微光-生活型態與空間敘事
新舊交融,保留建築原有的立面與空間格局,以「修舊不顯舊」的概念進行更新。以循環建築出發,以當地的回收材料以及原先的建築結構做結合,實現永續及環保概念,而立面設計呼應周邊建築,主要材質採用洗石子與木材,呈現自然質樸且溫暖的質感並利用天井將光線引入建築核心,使每層樓的光影都隨著時間產生變化,最後透過虛實交錯的空間手法,創造出多樣空間體驗,使人行走其中能感受到時間、光線與空間的共鳴。
業主設定
業主從事多媒體創作與收藏,興趣包括攝影、栽植花草、蒐集古物,並飼養一隻小豬。曾到都市從事遊戲與美術相關工作,現計畫返鄉創業,動機源自對都市快節奏生活的倦怠,希望在鄰近公園的環境中,享受具有文化與人文氣息的生活空間。


構築技術與未來文化資產




斗六舊城共創:從市場到街道的再生實驗
參與人員 / 雲林科技大學 日本福井大學 中原大學
河里涼平 、酒向ひらり、李潘⿓ 、 陳萬銘、林家琪 、 林誠信、駱泳達、陳⼦宜 、⿈宥駩
黒田萌佳、道坂宇飛、徐菀謙、黃苡寧、李胤承、黃美瑄、張文菱、陳竑宇
肥田叶翔、張凱帝、劉佩璇、蔡宛凌、林菁亭、李韋蓁、周湘淩、蘇芷瑄
市場再生與地方記憶

調查西市場的歷史背景 –> 發現問題 –> 提出空間改善策略

我們希望讓西市場成為人們重新認識斗六的起點。從車站出發,透過串聯步行路線,讓旅客能自然地走進地方生活,同時透過保留與結合新的遮蔭與展示設計,讓老市場的溫度被延續。同時加入以在地特產等等製作的紀念品,讓人能帶走一份關於斗六的記憶,使市場重新成為連結人、生活與記憶的場域。
文化資產的數位轉譯
探索西市場的獨特與價值 –> 辨識壓力 –> 提出未來情境想像

面對街區老化與人流減少的挑戰,我們運用AR互動,讓人以更輕鬆的方式認識老街。透過這種方式,更是一種讓記憶被重新體驗的方式。
老街防洪與環境韌性

近年氣候快速的變遷 –> 老屋如何與環境共存 –> 提出預防策略
太平老街在時間與氣候的挑戰下,對於面對豪雨與積水的問題,我們思考的不只是防洪,而是如何讓老街與環境共存。透過排水系統與可調式防洪設計,讓街區在未來能以更柔軟的方式,面對自然的變化。